Дом Петрополь-1 в Павловске, "Павловск градъ"

Дом 278 м² расположен на 13,45 сотках

⚡Успейте забронировать по акции ноября

Площадь
278 м²

Спальни
4

Сан. узла
2

Дом сдан

Этапы работы по объекту

Подготовительные работы

Строительство фундамента

Возведение стен и перекрытий

Монтаж кровли

Закрытие теплого контура, фасадные работы

Монтаж инженерных систем

Внутренние работы по предчистовой отделке

Благоустройство территории

Двухэтажный дом Петрополь-1 в самом сердце города Павловск. Расположенв живописном месте в пешей доступности от всей городской инфраструктуры

Большая гостиная 32 м² с кухней 16,09 м², которые можно объединить или при желании разделить. Это пространство, несомненно, станет центром притяжения всей семьи. А 4 спальни и 2 санузла — это удобная и актуальная классика. В доме предусмотрены просторная терраса, балкон и навес для авто — все для того, чтобы наслаждаться жизнью на природе. Спокойная загородная жизнь прямо в городе с городской пропиской

Сдается с отделкой white box и полностью готов к финишному ремонту

Дом из высококачественного газобетона основателен и надежен, как это свойственно каменным зданиям, хорошо сохраняет тепло и, следовательно, экономичен.

Выполнен в безупречном стиле Райт

Архитектурное решение и цветовая гамма дома продуманы таким образом, чтобы подчеркнуть гармоничную связь с природой. Используемые материалы, лаконичность линий и цветовые решения фасадов органично вписываются в живописную красоту Павловска и подчеркивают гармоничную связь с природой.

ТЕХНИЧЕСКИЕ ХАРАКТЕРИСТИКИ

Технические характеристики

  • Фундамент Монолитная плита 300 мм
  • Стены Газобетон 375 мм
  • Кровля Вальмовая, металлочерепица
  • Фасад Облицовочный кирпич, планкен,
    молдинги
  • Электричество 15 кВт
  • 1 этаж Водяной теплый пол
  • 2 этаж Водяной теплый пол
  • Горячее водоснабжение Бойлер
  • Газ Магистральный
  • Вентиляция Система рекуперации воздуха

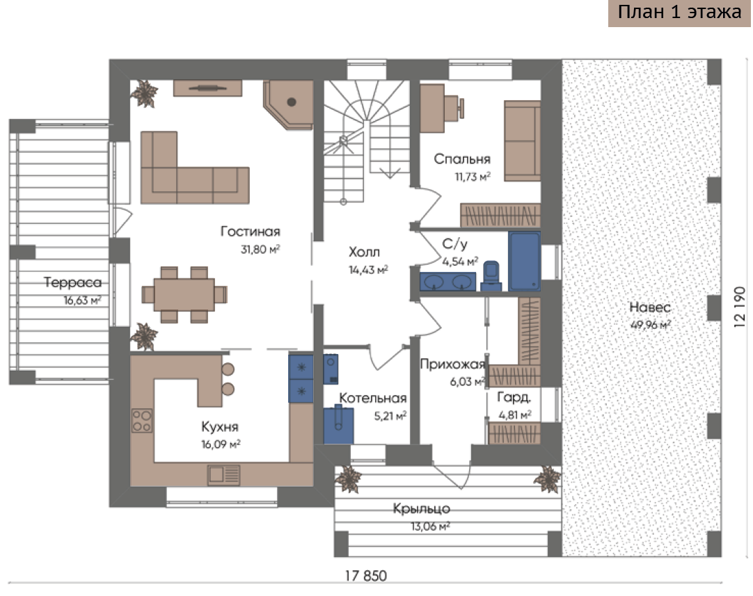
Кухня-гостиная 48 м²

можно разделить/объединить

Навес для авто

2 санузла

4 спальни

Терраса 16,63 м²

Прачечная

Домовладение находится на уникальном перспективном участке, поэтому может быть интересно как для инвестиций, так и для постоянного проживания.

Успейте забронировать свой дом с ИЖС и всеми коммуникациями напрямую от застройщика!

Участок благоустроен, выполнено озеленение, сделаны парковочные места, забор и откатные ворота. На участке есть плодоносящие деревья

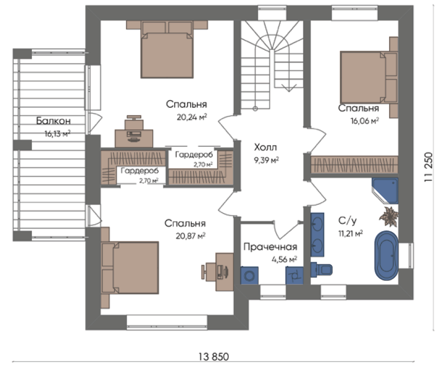
Планировка

Гостиная 31,80 м² с возможностью совмещения с кухней 16,09 м²

1 спальня / кабинет

1 санузел

Техническое помещение

Терраса 16,63 м²

Навес для авто 49,96 м²

3 спальни

1 санузел

Балкон

Постирочная

Инфраструктура

Доступна вся привычная городская инфраструктура:

2 мин

Остановка

900 метров

Павловский парк

в пешей доступности

магазины, кафе, рестораны

Посмотреть остальные проекты «Невский Градъ»

Более 10 проектов
воплощающие
ваши желания

Галерея

Мы воплощаем в реальность ваши мечты о доме

Мы видим наши проекты как часть вашей истории. Поэтому помогаем не просто переехать в дом вашей мечты, но и вдохновить на жизнь в окружении живописных природных красот

0 лет

Покупаем перспективные участки и строим качественные дома

0 +

Объектов и участков анализируется ежедневно собственным отделом аналитики

0 +

Домовладений в год. Строим с соблюдением всех технологий и наличием всех документов

Варианты оплаты

Гибкие варианты оплаты вашего дома

Оплата 100% / рассрочка

Возможна оплата как 100%, так и рассрочка на индивидуальных условиях

Ипотека

Наш ипотечный специалист подберет для вас выгодные варианты ипотечного кредитования на покупку загородного дома. 

3 варианта стоимости в зависимости от этапа строительства

Теплый контур

С инженерными и отделочными работами

С благоустройством территории

Гарантия качества

Уверенность в качестве: наша тройная гарантия

Мы работаем в соответствии с высочайшими стандартами качества. Используем только лучшие материалы, передовые технологии и инженерные системы. Каждый этап строительства проходит строгий контроль как нашими, так и сторонними экспертами

Гарантия качества

Мы обеспечиваем строительство вашего дома в соответствии с высочайшими стандартами качества. Каждый этап проходит строгий контроль, чтобы обеспечить долговечность и надежность вашего жилища.

Соблюдение сроков

При покупке дома на начальных этапах строительства мы гарантируем соблюдение всех сроков производства. Ваш дом будет вовремя готов в полном соответствии с проектом

Прозрачные финансы

Мы предоставляем полную прозрачность в финансовых вопросах. Все расходы и стоимости являются четкими и предсказуемыми, так что вы можете планировать свои расходы с уверенностью.

Гарантия качества

Мы обеспечиваем строительство вашего дома в соответствии с высочайшими стандартами качества. Каждый этап проходит строгий контроль, чтобы обеспечить долговечность и надежность вашего жилища.

Прозрачные финансы

Мы предоставляем полную прозрачность в финансовых вопросах. Все расходы и стоимости являются четкими и предсказуемыми, так что вы можете планировать свои расходы с уверенностью.

Соблюдение сроков

При покупке дома на начальных этапах строительства мы гарантируем соблюдение всех сроков производства. Ваш дом будет вовремя готов в полном соответствии с проектом

Услуги для клиентов

Дополнительные услуги для клиентов

Сделаем ваш дом еще комфортнее, предоставляя полный цикл услуг по строительству, ремонту и благоустройству с гарантией качества

Получите консультацию или запишитесь на просмотр дома или участка

Менеджер перезвонит вам в течение 15 минут, и вы получите:




    Заполняя форму на сайте, вы соглашаетесь с нашей политикой конфиденциальности

    Контакты

    Звоните, проконсультируем!

    Адрес компании:

    196601, Октябрьский бульвар, 53/28 Пушкин г., Санкт-Петербург

    Электронная почта:

    Режим работы:

    Пн-Пт с 10:00 — 18:00,
    Сб-Вс — по записи

    Присоединяйтесь к нам в соцсетях:

    Реквизиты:

    ИНН: 860506714088 
    ОГРН: 322784700117285

    Написать в WhatsApp

    Нажмите, чтобы написать сообщение нашему специалисту напрямую в WhatsApp

    Запись на экскурсию

    Напишите ваш телефон и наш специалист свяжется с вами удобным для Вас способом

    Получить презентацию

    Подробная презентация с технической частью и возможный дизайн проектом

    Скачать презентацию

    Получите презентацию, после которой вы влюбитесь в свой будущий дом

      Получить расчет по ипотеке

      Точный расчет бюджета

      Прозрачную смету

      Оценку времени строительства

      Анализ локаци

      План действий

        Получить расчет стоимости

        Точный расчет бюджета

        Прозрачную смету

        Оценку времени строительства

        Анализ локаци

        План действий

          Записаться на экскурсию